
CREATE YOUR DREAM HOME
BUILD YOUR DREAM HOME!
Highlands at Manzanita is the last larger piece of developable land in Manzanita, Oregon. You have the option to purchase a lot and build later (5-year limit from purchase to build, per the HOA), or you can work with one of our hand-selected home-building partners to get started on your dream home right away!
1. CHOOSE YOUR HOMESITE
Our interactive site maps show the various home sites, spec homes, view examples, and lot information. If you'd like to see the lot in person, please use the contact page form to request a tour.
Request a Tour2. SELECT YOUR DESIGN
Our green-certified building partner, Lexar, has pre-approved plans to minimize the time between designing your home and moving in! Browse their styles and floor plans below to choose your favorite. You can also work with one of our custom home builders or your own to design the home of your dreams.
3. FINANCING OPTIONS
We've partnered with Evergreen Home Loans to offer a streamlined process that wraps all costs—lot, construction, and permits—into one competitive loan. You're also welcome to bring your own financing solution.
Learn MoreFeatured Home Designs by Lexar
These carefully crafted home designs blend coastal aesthetics with modern comfort, creating the perfect balance for your Manzanita lifestyle.
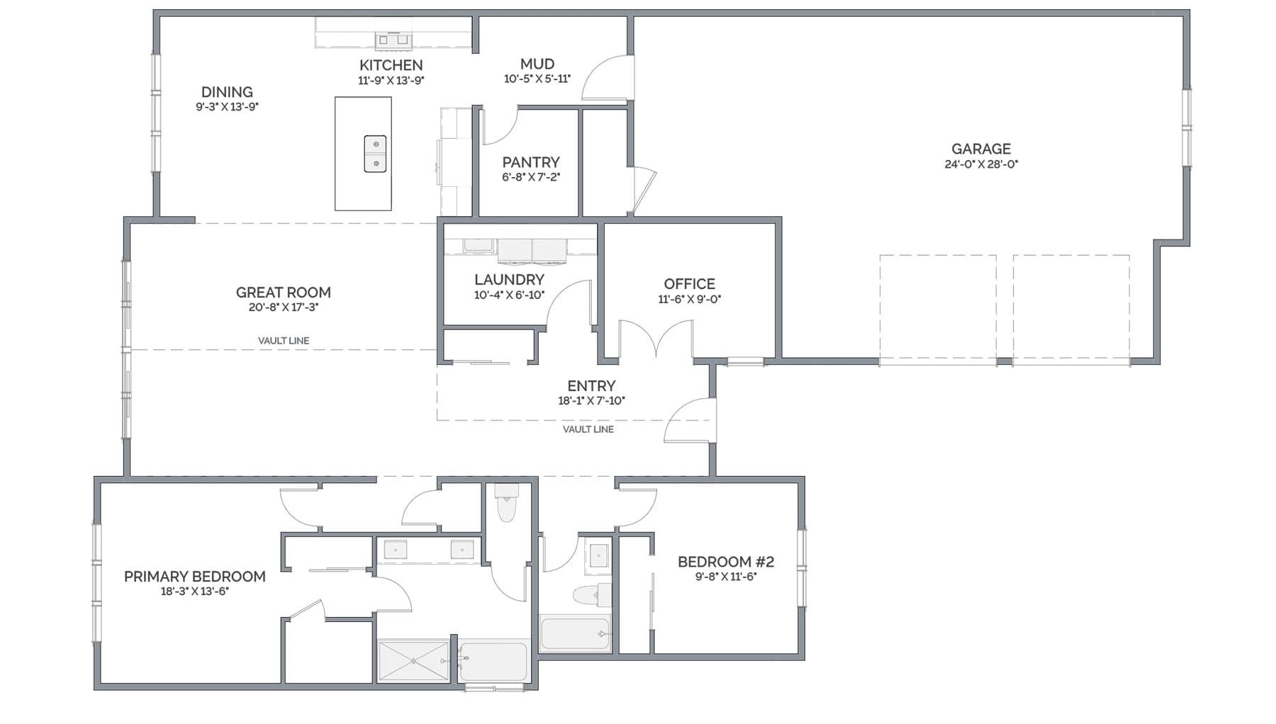
The Heather
3+ Bedrooms | 2.5 Bathrooms | 2,053 Sq Ft
Experience the perfect blend of indoor and outdoor living with this thoughtfully designed single-story home. Its spacious central courtyard serves as the heart of the home, ideal for entertaining or simply relaxing in your private oasis. This layout offers a seamless flow and is perfect for those who appreciate open, airy spaces.
The Lupine
3+ Bedrooms | 2.5 Bathrooms | 2,458 Sq Ft
This two-story home offers breathtaking coastal views with its expansive windows that extend from floor to ceiling in the two story open living area. The soaring ceilings create a bright and airy space, making the most of natural light and the stunning scenery outside. Designed for those who want to experience coastal living at its finest, this home is perfect for enjoying panoramic ocean vistas.
The Seagrass
3+ Bedrooms | 2.5 Bathrooms | 2,006 Sq Ft
Discover a unique floor plan that maximizes space while fitting perfectly on a narrow or smaller-sized lot. With its intelligent design, this home is ideal for coastal towns, offering both efficiency and style without compromising on comfort. You won’t be disappointed by its thoughtful layout and coastal charm.
The Verbena
2 Bedrooms | 2 Bathrooms | 1,833 Sq Ft
This single-story home is designed to embrace the beauty of coastal living, featuring large windows that frame stunning ocean views. With its open floor plan and seamless connection to the outdoors, this home allows you to fully enjoy the serene surroundings. Perfect for those seeking a peaceful retreat by the sea.
Excellence in Every Build
Building custom, on-your-lot homes throughout the Pacific Northwest, Lexar Homes is one of the nation's most recognized custom home builders. With decades of experience with on your lot home building, we have the knowledge and expertise to help you through the home building journey and achieve your ultimate goal of building a home on your land.
Our architectural guidelines ensure that each home contributes to the overall harmony of the neighborhood while allowing for individual expression and style.
Ready to Start Your Journey?
Contact us today to learn more about our home designs, available lots, and the process of creating your dream home in Highlands at Manzanita.
Get Started
































